Das Umfeld der Heilandskirche, insbesondere der davor gelegene Platz soll aufgewertet werden.   Foto:Stadtmessungsamt/stadt Stuttgart
Stadtweit

Umgestaltung Heilandsplatz - Sanierungsgebiet S29 - Stöckach

Aufwertung des Platzes

ThemaStadtentwicklung
Zeitraumfür Beteiligung: fortlaufend
vsl. Umsetzung: noch offen
ZielgruppeEinwohnerinnen und Einwohner von Ost

informelle Beteiligunginformelle Beteiligung
beendet

Aufwertung des Umfeldes

Grafik: Dialog Basis
Grafik: Dialog Basis
 
Der Heilandsplatz im Stadtteil Stöckach besteht aus einem großen Kreisverkehr, der im Sanierungsgebiet 29 zwischen Heilandskirche und Karl-Olga Krankenhaus im Stadtbezirk Stuttgart-Ost liegt. Durch die Funktion als Kreisverkehr  wird ein Großteil der Fläche als Verkehrsfläche genutzt und der Platz bietet nur wenig Aufenthaltsqualität für Fußgänger und Anlieger. Aufgrund seiner Lage direkt an der Heilandskirche und auch direkt angrenzend an den Park der Villa Berg wird über eine Veränderung dieser Situation nachgedacht. Vorstellbar sind eine Umgestaltung der bisher wenig genutzten Grünflächen im Kreisverkehr sowie eine veränderte Verkehrsführung zur Gewinnung neuer öffentlicher Flächen.
 

Digitale und postalische Beteiligung

Bürgerbeteiligung zu Zeiten der Corona-Pandemie ist eine Herausforderung und deutlich anders, als man es gewohnt ist, aber dennoch möglich. So waren die Bürgerinnen und Bürger vom 8. April bis 5. Mai 2021 eingeladen, sich digital und postalisch zum Thema Heilandsplatz zu beteiligen. Unter dem Reiter "Teilnehmen" finden sich alle Informationen zu den verschiedenen Teilnahmeformen. Dort konnten Interessierte mittels Online-Umfrage und interaktiver Karte direkt hier auf dem Portal mitmachen. Zudem gab es auch die Möglichkeit sich postalisch zu beteiligen. Zusätzlich zu diesen Beteiligungsmöglichkeiten wurde außerdem am 22. April 2021 um 18 Uhr eine Online-Veranstaltung angeboten. Die Auswertung der Bürgerbeteiligung finden Sie unter dem Reiter "Ergebnisse".
 

Pläne den Bürgern vorgestellt

Zusammen mit der Arbeitsgruppe Verkehr, die Teil des Bürgerbeteiligungsforums Stöckachtreff im Sanierungsgebiet ist, gab es im Januar 2014 eine Veranstaltung mit Bürgerbeteiligung mit etwa 60 Teilnehmern. Dort stellte das Amt für Stadtplanung und Stadterneuerung Vorschläge zur Umgestaltung des Platzes vor und stellte diese zur Diskussion. Das Ergebnis der Beteiligung war kontrovers, eine Abstimmung machte deutlich, dass aus Sicht eines Großteils der Teilnehmenden keinen aktueller Umgestaltungsbedarf gesehen wird.
 
Dennoch wurde von Bürgern auf einer Jahresveranstaltung 2015 eine Weiterbearbeitung des Projekts wieder favorisiert. Weitere Planungen wurden vorerst zurückgestellt, da der Heilandsplatz auf Grund seiner zentralen Lage im Stöckach von der Entwicklung zweier anderer, wichtiger Projekte anhängig ist. So soll das EnBW-Areal neu überplant werden und damit zusammenhängend die Frage über den Zugang über den Heilandsplatz geklärt werden. Ebenso sind die Planungen zu neuen Zugängen zum Park der Villa Berg noch nicht final entschieden, auch hier könnte der Heilandsplatz eine wichtige Rolle spielen.
 

Bürger können auch langfristig mitmachen

Interessierte, die sich engagieren möchten, sind im Stöckachtreff herzlich willkommen. Der Stöckachtreff ist das zentrale Forum für Bürgerbeteiligung im Sanierungsgebiet und ist offen für alles und jeden mit seinen Stöckach-Themen. In diesem Rahmen können auch, mit Hilfe des Verfügungsfonds des Sanierungsgebiets, kleinere Projekte für den Stöckach bis 1.000 Euro beantragt und genehmigt werden. Der Stöckachtreff findet an jedem zweiten Dienstag im Monat um 19 Uhr im Stadtteil- und Familienzentrum Stöckach in der Metzstraße 26 - aktuell digital - statt, um aktuelle Themen, Projekte und Ideen zu besprechen. Ergänzend zum zentralen Forum haben sich fünf Arbeitsgruppen gebildet.

Weitere, ausführliche Informationen zum Sanierungsgebiet, der Bürgerbeteiligung, dem Verfügungsfonds, den Teilprojekten und Arbeitsgruppen finden Sie auf der Homepage des Sanierungsgebites unter www.stoeckach29.de.

Weitere Informationen über das Sanierungsgebiet und die Teilprojekte

Sanierungsgebiet Stuttgart 29

Innerhalb der roten Markierung befindet sich das Sanierungsgebiet Stuttgart 29 -Teilbereich Stöckach-. Foto: Stadtmessungsamt/Stadt Stuttgart
Im Sanierungsgebiet Stuttgart 29 sollen die Lebens- und Arbeitsbedingungen verbessert werden.
WEITER

Villa Berg

Die Villa Berg liegt im Stadtbezirk Stuttgart-Ost. Foto: Thomas Wagner/Stadt Stuttgart
Die Villa Berg und ihr Park sollen saniert und ein Ort für alle Stuttgarter werden.
WEITER

Ehemalige HWS

Das Grundstück der ehemaligen Hauswirtschaftlichen Schule soll neu bebaut werden. Foto: Stadtmessungsamt/Stadt Stuttgart
Das Grundstück der ehemaligen Hauswirtschaftlichen Schule soll neu bebaut werden.
WEITER

Energetische Sanierung

Der Stöckachplatz und die Hackstraße aus der Luft gesehen. Foto: Stadt Stuttgart
Am Stöckach läuft ein Pilotprojekt für die energetische Quartiersentwicklung.
 
WEITER

Ostendstraße & Parkzugänge

Die Ostendstraße und verschiedene Parkzugänge aus der Luft gesehen. Foto: Stadtmessungsamt/Stadt Stuttgart
Die Ostendstraße und der Parkzugang Villa Berg sollen umgestaltet werden.
 
WEITER

Weitere Teilprojekte

 
 

Neckarstraße

Vier Stichstraßen zur Neckarstraße sollen aufgewertet werden. > WEITER
 

Else-Kienle-Staffel

Der grüne Hang zwischen Stöckachplatz und Landhausstraße soll umgestaltet werden. > WEITER
 
Phase 2

Online-Umfrage

08.04.2021 bis 05.05.2021

Im Sanierungsgebiet Stuttgart 29 -Teilbereich Stöckach- steht die Umgestaltung des Heilandsplatzes auf der Agenda. Hier haben wir Ihnen fünf Gestaltungsvarianten des Heilandsplatzes vorgestellt, die Sie in einer Online-Umfrage bewerten konnten. Sie konnten vom 8. April bis 5. Mai 2021 mitmachen.

beendet

Vorabinformationen zur Umfrage

Wir wollen den Heilandsplatz in unserem schönen Stuttgarter Osten gemeinsam mit Ihnen gestalten - dafür haben wir Sie nach Ihrer Meinung gefragt. Im Folgenden finden Sie fünf verschiedene Planungsvarianten des Heilandplatzes und auch ein Plan des derzeitigen Zustands.
 
Zu den einzelnen Varianten haben wir Ihnen die Pro- und Contra-Argumente kurz aufgeführt. Schauen Sie sich in Ruhe die einzelnen Varianten an. Sollten Ihnen die Grafiken zu klein sein, öffnen Sie einfach die zur Variante zugehörige PDF-Datei. Anschließend konnten Sie bei der unten stehenden Umfrage mitmachen und uns mit Ihren Informationen und Ihrer Meinung dadurch weiterhelfen. Für Ihre engagierte Teilnahme, möchten wir uns herzlich bedanken!
 
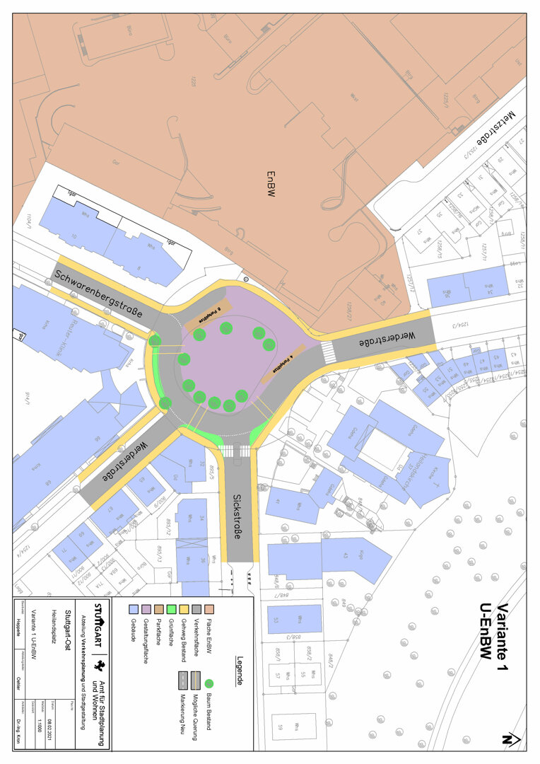
Variante 1 U-EnBW
Variante 1 U-EnBW

Pro

  • Große zusammenhängende Gestaltungsfläche
  • Erhalt aller Bäume
  • Erhalt von 12 Parkplätzen möglich
Contra
  • Fußgänger queren Fahrbahn mit zwei Fahrtrichtungen
 
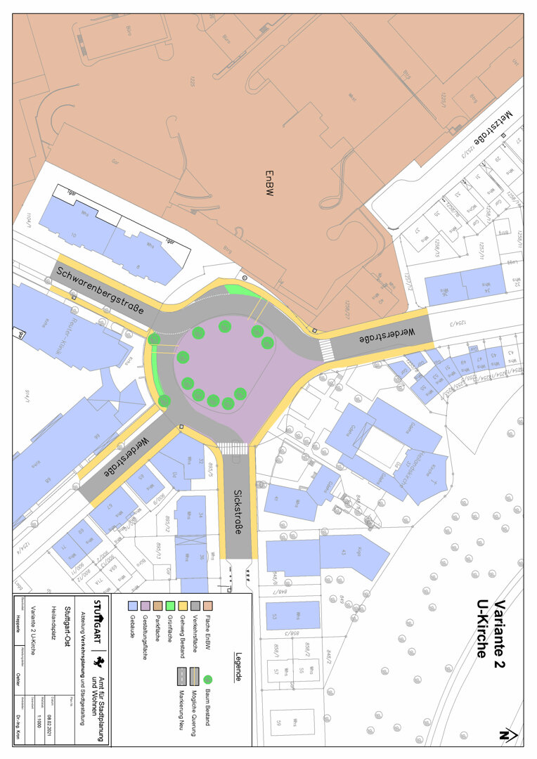
Variante 2 U-Kirche
Variante 2 U-Kirche

Pro
  • Große zusammenhängende Gestaltungsfläche
  • Erhalt aller Bäume
  • Eine Einmündung
  • Sichtachse Schwarenbergstraße-Heilandskirche gestärkt
Contra
  • Fußgänger queren Fahrbahn mit zwei Fahrtrichtungen
  • hohe Geschwindigkeiten
  • Entfall von 14 Parkplätzen
 
 
Variante 3 Großer Kreisverkehr
Variante 3 Großer Kreisverkehr

Pro
  • Niedrige Geschwindigkeiten
  • Gestaltungsfläche ist aus allen Richtungen gleichberechtigt erreichbar
  • Fußgänger queren Fahrbahn mit einer Fahrtrichtung
  • Erhalt aller Bäume
  • Arrondierung des Kreisverkehrs
  • Sichtachse Schwarenbergstraße-Heilandskirche gestärkt
Contra
  • Gestaltungsfläche ist ringsherum von der Fahrbahn umgeben
  • Entfall von 14 Parkplätzen
 
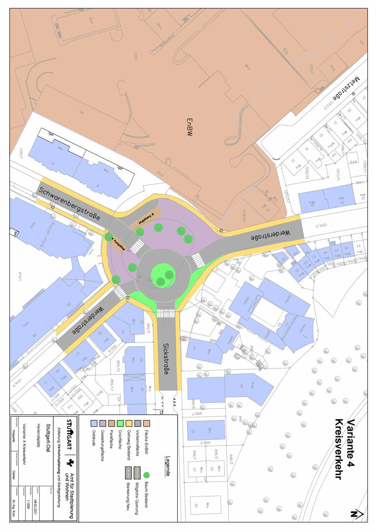
Variante 4 Kreisverkehr
Variante 4 Kreisverkehr

Pro
  • Niedrige Geschwindigkeiten
  • Fußgängerüberwege an jeder Zufahrt
  • Erhalt von 12 Parkplätzen möglich
Contra
  • Kreisverkehr liegt nicht mittig 
  • Kleine Teilflächen entstehen
  • Entfall von drei Bäumen
 
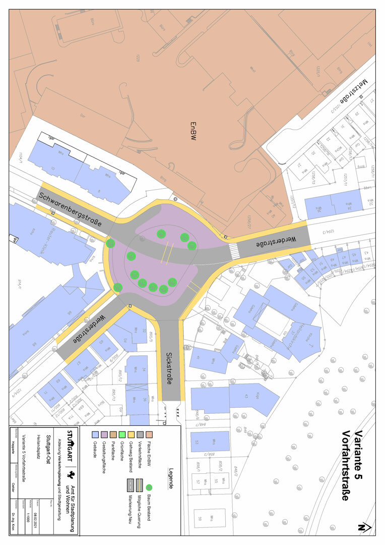
Variante 5 Vorfahrtsstraße
Variante 5 Vorfahrtsstraße

Pro
  • Eine Einmündung
  • Verkehrsweg Werderstraße-Schwarenbergstraße gestärkt
Contra
  • Sehr hohe Geschwindigkeit
  • Teilung der Gestaltungsfläche durch Hauptverkehrsstraße
  • Fußgänger queren Fahrbahn mit 2 Fahrtrichtungen
  • Entfall eines Baumes
  • Entfall von 14 Parkplätzen
 
Variante 0 Ist-Zustand
Variante 0 Ist-Zustand
 

Machen SIe jetzt bei der Umfrage mit!

Bisheriges Umfrageergebnis

Welche Variante sagt Ihnen zu?

  • 8 % V1: U-EnBW
  • 50 % V2: U-Kirche
  • 25 % V3: Großer Kreisverkehr
  • 8 % V4: Kreisverkehr
  • 0 % V5: Vorfahrtstraße
  • 8 % V0: Ist-Zustand

Warum legen Sie Ihren Weg über den Heilandsplatz zurück? (Mehrfachnennung möglich)

Ich bin auf dem Weg zur Arbeit. 22 %
Ich bin privat unterwegs. 92 %
Sonstige 6 %

Wie sind Sie unterwegs? (Mehrfachnennung möglich)

zu Fuß 81 %
mit dem Rad 58 %
mit dem Auto 64 %
mit den öffentlichen Verkehrsmitteln 17 %
Sonstige 0 %

Bitte kreuzen Sie an: Es soll alles so bleiben, wie es ist.

  • 14 % Stimme zu
  • 69 % Stimme nicht zu
  • 17 % Enthaltung

Bitte kreuzen Sie an: Wir wünschen uns eine neue Aufteilung des Straßenraums, die speziell für den Radverkehr und die Fußgängerinnen und -gänger geschaffen wird.

  • 81 % Stimme zu
  • 11 % Stimme nicht zu
  • 8 % Enthaltung

Bitte kreuzen Sie an: Wir brauchen eine gute Lösung für PKWs und LKWs mit Kreisverkehr und Parkplätzen.

  • 36 % Stimme zu
  • 50 % Stimme nicht zu
  • 14 % Enthaltung

Bitte kreuzen Sie an: Der Radverkehr braucht sichere Spuren für den Radberufsverkehr, Schülerverkehr und schnelle E-Bikes. Das soll das Ziel des Umbaus sein.

  • 67 % Stimme zu
  • 19 % Stimme nicht zu
  • 14 % Enthaltung

Bitte kreuzen Sie an: Wir möchten den Straßenraum reduzieren: wenig Asphalt, viel Grün und einen Platz zum Verweilen für die Bürgerinnen und Bürger.

  • 83 % Stimme zu
  • 11 % Stimme nicht zu
  • 6 % Enthaltung

Wie soll der Heilandsplatz aussehen? Welche Wünsche haben Sie? Entstehen Grünflächen? Gibt es Sitzbänke, Fahrradständer oder Kunst – oder anderes? Wählen Sie maximal 8 Punkte aus. Darunter kann auch das Feld "Sonstiges" sein, in das Sie einen eigenen Wunsch eintragen können.

Baumbestand 94 %
Sitzgelegenheiten 83 %
Spielmöglichkeiten 33 %
Brunnen 61 %
Kunst 36 %
Fahrradwege 58 %
Bushaltestellen / ÖPNV 22 %
Parkplätze 22 %
Blumen- / Blühstreifen 81 %
Fahrradständer 39 %
Basketballkörbe 8 %
Trampoline 11 %
Sonstige 25 %

Welchem Geschlecht fühlen Sie sich zugehörig?

  • 64 % Männlich
  • 36 % Weiblich
  • 0 % Divers

Wie alt sind Sie?

  • 6 % bis 16 Jahre
  • 8 % 17 bis 27 Jahre
  • 50 % 28 bis 45 Jahre
  • 31 % 46 bis 65 Jahre
  • 6 % über 65 Jahre

Woher aus Stuttgart kommen Sie?

  • 22 % Stöckach
  • 50 % Stadtbezirk Stuttgart-Ost
  • 28 % anderer Stuttgarter Stadtbezirk

Ergebnisse der Bürgerbeteiligung

Der Heilandsplatz soll im Rahmen der Sanierung Stuttgart 29 ‐Teilbereich Stöckach‐ umgestaltet werden. Nach einer ersten Bürgerbeteiligung 2014 liegt nun das Ergebnis des dortigen städtebaulichen Wettbewerbs vor. Das Thema wurde zuvor aufgrund der Entwicklungen auf dem benachbarten EnBW‐Areal zunächst zurückgestellt.
 
Im Amt für Stadtplanung und Wohnen wurden fünf mögliche Varianten für den Heilandsplatz entwickelt, die zusammen mit einer „Ist‐Zustand“‐Variante in der Bürgerbeteiligung vorgestellt wurden. Zu allen Varianten wurden die Vor‐ und Nachteile aus Planungssicht erläutert. Im Zeitraum vom 8. April bis zum 5. Mai 2021 konnten die Bürgerinnen und Bürger ihre Wünsche zur Gestaltung einbringen. Als zusätzliche Information wurde nach den Wegebeziehungen gefragt sowie nach der Art der bevorzugten Mobilität. Vor dem Hintergrund der pandemiebedingten Einschränkungen wurden mehrere alternative Formate für die Beteiligung angeboten. Ein Fragebogen konnte online unter "Teilnehmen" oder im Rahmen einer digitalen Veranstaltung am 22. April ausgefüllt werden. Außerdem gab es den Fragebogen in Papierform vor Ort im Stöckach zum Mitnehmen etwa beim Bäcker oder im Stöckach‐Treff. Auf Anforderung wurde dieser per Post von der Stadt zugesandt.
 

Gestaltungswünsche fließen in den weiteren Prozess ein

Insgesamt beteiligten sich 78 Personen, etwa die Hälfte digital, die meisten aus Stuttgart‐Ost. Im Ergebnis wurden zwei Varianten deutlich priorisiert. Bei der Variante U‐Kirche würde der Kreisverkehr aufgegeben und die Kreisfahrbahn an den Vorplatz der Heilandskirche angebunden. Bei der Variante Großer Kreisverkehr würde die Kreisfläche beibehalten, mit seitlichen Grünbereichen ergänzt und durch Querungsmöglichkeiten für den Fußverkehr besser erschlossen. Diese beiden priorisierten Varianten werden nun planerisch genauer beleuchtet. Dabei wird untersucht, in welcher Variante die Gestaltungswünsche der Bürgerinnen und Bürger am besten umzusetzen sind. Dieser Prozess soll im Herbst abgeschlossen sein.
 
Die genaue Auswertung aller Einzelergebnisse können Sie hier herunterladen:

Ergebnisse und Dokumentationen

Das Vorhaben ist ein Teilprojekt des Sanierungsgebiets Stuttgart 29  -Teilbereich Stöckach-. Seit 2012 werden zusammen mit den Bürgerinnen und Bürgern Projekte zur Umgestaltung des öffentlichen Raums entwickelt. Die Möglichkeiten für die Bürgerbeteiligung reichen von Arbeitsgruppen über themenbezogene Stadtteilspaziergänge bis zu kreativen Workshops. 
 
"Stuttgart 29 -Teilbereich Stöckach-" wurde im Jahr 2012 in das Bund-Länder-Programm "Aktive Stadt- und Ortsteilzentren" aufgenommen. 2014 wurde das Sanierungsgebiet um das Areal der Villa Berg erweitert. Seit 17. April 2014 gilt nun die Sanierungssatzung für das erweiterte Gebiet. Welche ersten Ideen und Ergebnisse schon erreicht wurden, können Sie auf der Homepage zum Sanierungsgebiet nachlesen.
 
Auf www.stoeckach29.de finden Sie außerdem ausführliche Informationen zum Sanierungsgebiet, den Teilprojekten, Protokolle und Dokumentationen sowie Näheres zum Stöckachtreff, der die Bürgerbeteiligung im Sanierungsgebiet organisiert.

Ihre Ansprechpartner zum Vorhaben vor Ort

Allgemeine Auskünfte erhalten Sie hier:
 
Telefon: (0711) 67223005
Mail:  Poststelle.61-8@stuttgart.de
 
Fragen zu den Arbeitsgruppen:

Ihr städtischer Ansprechpartner zum Vorhaben

Amt für Stadtplanung und Wohnen
Abteilung Stadterneuerung und Wohnbauentwicklung
Telefon: (0711) 216-20302
Mail: poststelle.61−8@stuttgart.de
 
Anschrift:
Landeshauptstadt Stuttgart
Amt für Stadtplanung und Wohnen
Eberhardtstraße 10
70173 Stuttgart
 

Ihre Ansprechpartner für allgemeine Fragen zum Beteiligungsportal

Oliver Seibold
Abteilung Kommunikation
Telefon:    (0711) 216-91780
Mail:        stuttgart-meine-stadt@stuttgart.de
 
Simone Sommer
Abteilung Kommunikation
Telefon:    (0711) 216-91813
Mail:        stuttgart-meine-stadt@stuttgart.de

Anschrift:
Landeshauptstadt Stuttgart
Abteilung Kommunikation
Rathauspassage 2
70173 Stuttgart​